新能源发电预装式变电站

所属分类:箱式变电站

咨询热线

0373-6383588

  • 产品描述
  • 产品说明书
  • 常见问题
  • 售后服务

产品介绍

能源转型是当今全球能源发展的大趋势,世界各国都将发展可再生能源作为推动未来能源转型的重点。随着我国大力发展核能、风电、光伏等新能源,积极实施清洁替代和电能替代,公司把握新型变电站技术发展趋势,开展了新能源领域预装式变电站的关键技术研究。新能源预装式变电站已成为公司新型系列化成熟产品。

新能源预装式变电站其由风力(太阳能)发电用组合式变压器,是将升压变压器器身、开关设备、高压限流熔断器、分接开关、二次智能化系统和EPS不间断电源系统及相应辅助设备集合与一体的静电变电设备。产品设计吸取了国内外预装式变电站的先进技术,并兼顾我国的国情特点:装配有中央闭锁单元,满足“五防”要求,操作可靠;外壳采用环保型非金属或复合板外壳,具有耐冲击,防腐蚀,使用寿命长。并采用景致设计,使外观与周边环境协调,达到美化市容的作用。

通过在工厂内完成制造、组装、配线、调试等工作,整体运输至工程现场,就位安装于基础上,实现变电站的整站预制。针对风力(太阳能)发电的特殊性,为用户提供合理的解决方案,是风力(太阳能)发电机组理想的配套升压变压器

功能特点

新能源预装式变电站具有的施工周期短、节约总投资、节省土地面积、施工质量易于控制、抵抗地质灾害能力强、后期扩建方便、安全可靠性高、服务接口少和易于环境协调等特点。

适用范围

广泛应用与新能源领域光伏、风电升压站;城市中心变电站;城乡农网改造变电站;以及高海拔、塌陷区、偏远地区等各种变电站建设和使用环境。

技术参数


序号 名称 单位 参数
1 额定容量 KVA 630-3400
2 额定电压 KV 35-38.5
3 高压分接范围 ±2×2.5%
4 联结组编号 Dyn11,Dyn11yn11,
ynd11d11
5 工作耐压 KV 85
6 雷电冲击耐压 KV 200
7 熔断器额定最大开断电流 KA 31.5
8 负荷开关 A 300,600
9 噪音水平 dB ≤55
10 防护等级 IP54
11 额定频率 HZ 50


安装、使用及维护

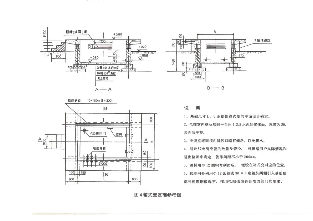
1、 图4为箱式变基础参考图,用户也可根据需要自行设计。

2、 在箱式变基础的一侧或四周埋设好接地极,变压器接地与防雷接地可以公用一个接地系统。引至箱式变基础平台的接地引线应不少于两根,并确保接地电阻R≤4Ω。

3、 箱式变应采用专用工具底部起吊,如图3所示,注意吊装标记。

4、 箱式变底座与基础之间缝隙用水泥砂浆抹封,以免雨水进入电缆室。

5、 电缆进入电缆室后,电缆与穿管之间的缝隙须密封防水。

6、 箱式变在安装维修后,在投入运行前应检查下列项目:

a、成套装置内是否清洁;

b、操作机构是否灵活;

c、主要电器通断是否灵活可靠;

d、仪表与互感器的匹配是否正确,接线及极性是否正确;

e、电器辅助接点的通断回路是否可靠、准确;

f、所有电器安装螺母是否紧固;

g、所有母线是否连接良好;

h、电器整定值是否符合要求,熔断器选择是否正确;

i、表计及继电器动作是否准确无误;

j、主回路及辅助回路的电气接点是否符合原理图要求;

k、变压器的温控装置是否已调到规定的使用温度;

l、检查电容器外壳的接地是否良好,放电系统是否可靠;

m、箱式变投运前应对高低压配电设备、变压器计量装置等进行必要的试验,试验合格后,才允许投运;

N、变压器压力释放阀是否打开;

7、将变压器网门及所有开关设备可以开启的门均关好,所有开关应处于分闸位置。

8、按操作程序合闸10KV电源,观察高压室指示仪表,若正常,变压器可投入运行。

9、闭合低于开关,观察低压指示仪表,若正常,再分别合分路开关,箱式变投入正常运行。

10、维护

a、箱式变中所有元件按各自规定的技术要求进行维护。

b、若箱式变所选用的变压器为S11、S13、SBH15油浸式变压器,每年至少按规定进行一次油样分析检查。

c、运行中的高压负荷开关设备,经20次满负荷或2000次无负荷分合闸操作后,应检查触头情况,灭弧装置的损耗程度以及机械性能,发现异常应及时检修或更换。

d、低压开关设备自动跳闸后,应检查、分析跳闸的原因,待排除故障后,方可重新投运。

e、避雷器应在每年雷雨季前进行一次预防性试验。

f、检修高低压开关和避雷器时,必须先切断箱式变有关进出线开关,并做好两端接地。变压器巡视时,请勿打开内网门。

g、为确保箱式变安全运行,一般情况下每隔6~12个月,需停电清扫灰尘一次,灰尘污染严重时视情况而定。

H、电容器柜检修时,须将电容器放电。

11、贮存

a、运输中,箱式变不应遭到任何不可恢复的损伤。

b、箱式变应保存在干燥平整的地方,不得受有害气体腐蚀。

随机文件及附件

产品附有装箱清单、合格证、安装使用说明书,电气原理图,二次接线和所使用的主要设备说明书、钥匙以及合同中要求提供的备件。

订货须知

1、 订货时应注明箱式变型号、规格、平面布置形式、数量及交货期。

2、 变压器型号、规格。

3、 确定主接线方案及主要元器件型号、额定参数。

4、 外壳颜色。

5、 特殊要求及非标方案的订货,应提供详细的资料.

常见问题及注意事项

一、高压侧送电合不上,一送就跳高压开关。

1.检查油变瓦斯继电器内的油位是否下降,低于270,然后打开放进塞,使油位上升,如果达不到有位则是给变压器补油。

2.检查保护定值。

二、高压断路器不能合闸

1.检查操作电源

2.闭锁机构是否复位

三、负荷开关合不上或者合不动

1.接地都是否分开,负荷开关是否分闸到位

2.保护跳闸后,将操作手柄插入负荷开关孔内,逆时针旋转,复位后再合闸

四、低压断路器没有电源

1.检查低压二次熔断器是否接触良好

2.检查三项电压是否正常

3.DW15-630开关送电时,总烧二次熔断,应换10-16A保险

五、电容柜经常烧坏断路器或接触器,应加装电抗器

六、当框架断路器应用户要求拆除电压线圈时,应停电拆除,严禁带电操作!

七、变压器运行后,出现瓷瓶密封处漏油

1.母排有应力或螺丝松动,将母排应力消除或紧丝

售后服务

在线询价